Godrej Retreat Sector 83, Faridabad
Godrej Retreat is a premium plotted development spread across approx. 44 acres, offering a gated resort-style lifestyle with over 1,500 trees and landscaped greens. Designed for luxury and comfort, it provides excellent connectivity to Delhi, Gurgaon and major expressways.
- 44 Acres Integrated Township
- 1,500+ Trees & Green Spaces
- 24×7 Security & Gated Entry
- Premium Resort Amenities
- Excellent Connectivity to Delhi & Gurgaon

Resort Inspired Lifestyle Amenities
Experience thoughtfully curated spaces designed for relaxation, recreation and everyday comfort.
Every amenity enhances your lifestyle while maintaining the serenity of a green township.
Outdoor Barbecue Plaza
Perfect space for weekend gatherings
Meditation Greens
Peaceful yoga & wellness lawn
Organic Orchard Walk
Lush fruit garden pathways
Pet Activity Park
Dedicated space for your pets
Senior Leisure Zone
Comfortable sit-out areas
Multi-Sport Arena
Active lifestyle sports courts
Location Advantages
Enjoy seamless connectivity to major schools, hospitals, business hubs and
lifestyle destinations — all within a short drive.
St. Mary’s Convent School
Approx. 8 mins drive
Arsh Hospital
Approx. 10 mins drive
Omaxe World Street Mall
Approx. 12 mins drive
81 Business Hub
Approx. 15 mins drives
Omaxe Commercial Hub
Approx. 13 mins drive
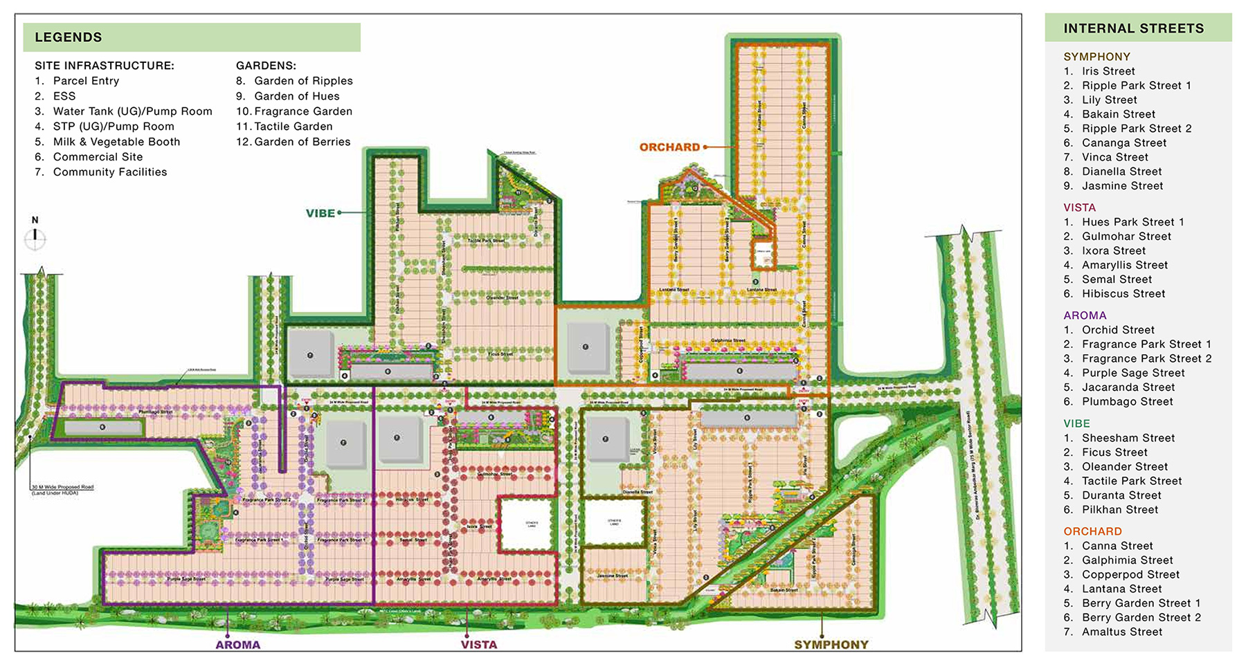
Master Plan
Thoughtfully divided residential, commercial and recreational zones ensure privacy, efficiency and a balanced community environment.
A well-planned internal road network connects key zones seamlessly, enhancing accessibility across the township.
Wide internal streets, pedestrian walkways and green corridors allow smooth movement for residents and visitors.
Separate service routes and entry-exit points reduce congestion and maintain a peaceful residential atmosphere.
Landscaped gardens, open parks and eco-friendly planning enhance ventilation, natural light and sustainability.
Price Details
For Price Details, Please Call Us at +91 9910363488
Details
-
Status:



